○鳴門市準用河川の河川管理施設等の構造の技術的基準を定める条例施行規則
平成25年3月27日
規則第15号
(趣旨)
第1条 この規則は、鳴門市準用河川の河川管理施設等の構造の技術的基準を定める条例(平成25年鳴門市条例第24号。以下「条例」という。)の施行に関し必要な事項を定めるものとする。
(1) 第1種側帯 旧川の締切箇所、漏水箇所その他堤防の安定を図るため必要な箇所に設けるものとし、その幅は、3メートル以上とすること。
(2) 第2種側帯 非常用の土砂等を備蓄するため特に必要な箇所に設けるものとし、その幅は、5メートル以上で、かつ、堤防敷(側帯を除く。)の幅の2分の1以下(20メートル以上となる場合は、20メートル)とし、その長さは、おおむね長さ10メートルの堤防の体積(100立方メートル未満となる場合は、100立方メートル)の土砂等を備蓄するために必要な長さとすること。
(3) 第3種側帯 環境を保全するため特に必要な箇所に設けるものとし、その幅は、5メートル以上で、かつ、堤防敷(側帯を除く。)の幅の2分の1以下(20メートル以上となる場合は、20メートル)とすること。
(堤防に沿って設置する樹林帯の構造)
第3条 条例第13条の堤防に沿って設置する樹林帯の構造は、堤内の土地にある樹林帯にあっては、成木に達したときの胸高直径が30センチメートル以上の樹木が10平方メートル当たり1本以上あるものその他洪水時における破堤の防止等の効果がこれと同等以上のものとする。
(堤防の管理用通路)
第4条 条例第14条に規定する管理用通路は、次に定めるところにより設けるものとする。ただし、管理用通路に代わるべき適当な通路がある場合、堤防の全部若しくは主要な部分がコンクリート、鋼矢板若しくはこれらに準ずるものによる構造のものである場合又は堤防の高さと堤内地盤高との差が0.6メートル未満の区間である場合においては、この限りでない。
(1) 幅員は、3メートル以上で堤防の天端幅以下の適切な値とすること。
(2) 建築限界は、次の図に示すところによること。

(床止めの設置に伴い必要となる護岸)
第5条 条例第22条に規定する護岸は、次に定めるところにより設けるものとする。ただし、地質の状況等により河岸又は堤防の洗掘のおそれがない場合その他治水上の支障がないと認められる場合は、この限りでない。
(1) 床止めに接する河岸又は堤防の護岸は、上流側は床止めの上流端から10メートルの地点又は護床工の上流端から5メートルの地点のうちいずれか上流側の地点から、下流側は水叩きの下流端から15メートルの地点又は護床工の下流端から5メートルの地点のうちいずれか下流側の地点までの区間以上の区間に設けること。
(2) 前号に掲げるもののほか、河岸又は堤防の護岸は、湾曲部であることその他河川の状況等により特に必要と認められる区間に設けること。
(3) 河岸(低水路の河岸を除く。以下この号において同じ。)又は堤防の護岸の高さは、計画高水位以上とすること。ただし、床止めの設置に伴い流水が著しく変化することとなる区間にあっては、河岸又は堤防の高さとすること。
(4) 低水路の河岸の護岸の高さは、低水路の河岸の高さとすること。
(床止めの設置に伴い必要となる魚道)
第6条 条例第23条の魚道の構造は、次に定めるところによるものとする。
(1) 床止めの直上流部及び直下流部における通常予想される水位変動に対して魚類の遡上等に支障のないものとすること。
(2) 床止めに接続する河床の状況、魚道の流量、魚道において対象とする魚種等を適切に考慮したものとすること。
(堰の設置に伴い必要となる護岸等)
第7条 前2条の規定は、堰の設置に伴い必要となる護岸及び魚道について準用する。この場合において、これらの規定中「床止め」とあるのは、「堰」と読み替えるものとする。
(水門のうち流水を流下させるためのゲート及びこれを支持する門柱の部分のうち土砂吐き等としての効用を兼ねる部分以外の部分の径間長の特例)
第8条 条例第33条第2項に規定する場合における水門のうち流水を流下させるためのゲート及びこれを支持する門柱の部分の径間長は、水門のうち流水を流下させるためのゲート及びこれを支持する門柱の部分のうち土砂吐き又は舟通しとしての効用を兼ねる部分以外の部分(以下この条において「兼用部分以外の部分」という。)の径間長が計画高水流量に応じ、同条第1項の表の右欄に掲げる値を10メートル以上超えることとなる場合又はゲートの縦の長さと横の長さとの比の値が15分の1以下となる場合においては、当該径間長を同表の右欄に掲げる値以上とすることができる。ただし、計画高水流量が1秒間につき500立方メートル未満であり、かつ、兼用部分以外の部分の水門のうち流水を流下させるためのゲート及びこれを支持する門柱の部分の全長が30メートル未満である場合においては、水門のうち流水を流下させるためのゲート及びこれを支持する門柱の部分の径間長を12.5メートル以上とすることができる。
(管理用通路としての効用を兼ねる水門の構造)
第9条 条例第39条第3項の管理用通路としての効用を兼ねる水門の構造は、次に定めるところによるものとする。ただし、管理用通路に代わるべき適当な通路がある場合は、この限りでない。
(1) 管理橋の幅員は、水門に接続する管理用通路の幅員を考慮した適切な値とすること。
(2) 管理橋の設計自動車荷重は、20トンとすること。ただし、管理橋の幅員が3メートル未満の場合は、この限りでない。
(水門又は樋門の設置に伴い必要となる護岸)
第10条 河川又は水路を横断して設ける水門又は樋門の設置に伴い必要となる護岸は、次に定めるところにより設けるものとする。ただし、地質の状況等により河岸又は堤防の洗掘のおそれがない場合その他治水上の支障がないと認められる場合は、この限りでない。
(主要な公共施設に係る橋)
第11条 条例第48条第2項の規則で定める主要な公共施設に係る橋は、次に掲げるものに係る橋とする。
(1) 全国新幹線鉄道整備法(昭和45年法律第71号)第2条に規定する新幹線鉄道
(2) 道路法(昭和27年法律第180号)第3条第1号に規定する高速自動車国道
(3) 前号に規定する道路以外の道路で幅員30メートル以上のもの
(2) 既設の橋等と近接橋との距離が、条例第48条第1項の規定による基準径間長以上であって、かつ、川幅(200メートルを超えることとなる場合は、200メートル)以内である場合においては、近接橋の橋脚を既設の橋脚等の見通し線上又は既設の橋等の径間の中央の見通し線上に設けること。
(橋面)
第13条 条例第49条第2項の規則で定める橋の部分は、地覆その他流水又は波浪が橋を通じて河川外に流出することを防止するための措置を講じた部分とする。
(橋の設置に伴い必要となる護岸)
第14条 橋の設置に伴い必要となる護岸は、次に定めるところにより設けるものとする。ただし、地質の状況等により河岸又は堤防の洗掘のおそれがない場合その他治水上の支障がないと認められる場合は、この限りでない。
(1) 河道内に橋脚を設けるときは、河岸又は堤防に最も近接する橋脚の上流端及び下流端から上流及び下流にそれぞれ条例第48条第1項の規定による基準径間長の2分の1の距離の地点を結ぶ区間以上の区間に設けること。
(2) 河岸又は堤防に橋台を設けるときは、橋台の両端から上流及び下流にそれぞれ10メートルの地点を結ぶ区間以上の区間に設けること。
(管理用通路の保全のための橋の構造)
第15条 条例第51条の管理用通路の構造に支障を及ぼさない橋(取付部を含む。)の構造は、管理用通路(管理用通路を設けることが計画されている場合は、当該計画されている管理用通路)の構造を考慮して適切な構造の取付通路その他必要な施設を設けた構造とする。ただし、管理用通路に代わるべき適当な通路がある場合は、この限りでない。
(適用除外の対象とならない区域)
第16条 条例第52条第1項の規則で定める要件に該当する区域は、橋の設置地点を含む一連区間における計画高水位の勾配、川幅その他河川の状況等により治水上の支障があると認められる区域とする。
(治水上の影響が著しく小さい橋)
第17条 条例第52条第1項の規則で定める橋は、次に掲げるものとする。
(1) 高水敷に設ける橋で小規模なもの
(2) 低水路に設ける橋で可動式とする等の特別の措置を講じたもの
(小河川の特例)
第18条 条例第60条に規定する小河川に設ける河川管理施設等については、河川管理上の支障があると認められる場合を除き、次に定めるところによることができる。
(1) 堤防の天端幅は、計画高水位が堤内地盤高より高く、かつ、その差が0.6メートル未満である区間においては、計画高水流量に応じ、次の表の右欄に掲げる値以上とすること。
計画高水流量(単位 1秒間につき立方メートル) | 天端幅(単位 メートル) |
50未満 | 2.0 |
50以上100未満 | 2.5 |
(2) 堤防の高さは、計画高水位が堤内地盤高より高く、かつ、その差が0.6メートル未満である区間においては、計画高水流量が1秒間につき50立方メートル未満であり、かつ、堤防の天端幅が2.5メートル以上である場合は、計画高水位に0.3メートルを加えた値以上とすること。
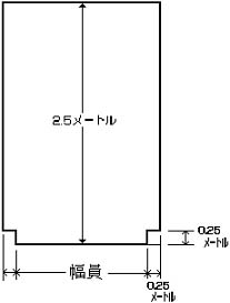
(3) 堤防に設ける管理用通路は、川幅が10メートル未満である区間においては、幅員は、2.5メートル以上とし、建築限界は、次の図に示すところによること。

附則
この規則は、平成25年4月1日から施行する。
附則(平成25年9月27日規則第33号)
この規則は、鳴門市準用河川の河川管理施設等の構造の技術的基準を定める条例の一部を改正する条例(平成25年鳴門市条例第43号)の施行の日から施行する。